74 900 000 Ft.

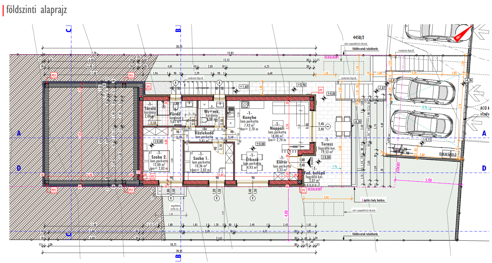
Új építésű, 3 szobás, földszinti, társasházi lakás, kerttel, saját kocsibeállóval, Sülysápon eladó!

2241 Sülysáp

Alapterület:
71 m2
Telekterület:
100 m2
Egész szobák száma:
3 db
Építés éve:
2026
Állapot:
építés alatt
Falazat:
tégla
Fűtés típusa:
hőszivattyú
Emelet:
Földszint
Szintek száma:
2
Terasz mérete:
19.6 m2
Kertkapcsolatos:
igen
Kert mérete:
100 m2
Víz:
van
Gáz:
van
Villany:
van
Csatorna:
van
Parkolás:
udvarban
Lift:
nincs
Légkondicionáló:
nincs
Szigetelés:
15 cm
Napelem:
nincs

CSOK PLUSZRA, ZÖLD HiTELRE, ÁFA VISSZAIGÉNYLÉSRE ALKALMAS, ÚJ ÉPÍTÉSŰ LAKÁS!
Budapesttől (17.kerület) 19km-re Sülysápon, A+ besorolású, két szintes, két lakásos társasház, földszinti, 70.97nm-es, kettő szoba, nappalis lakása, 100nm-es kizárólagos használatú kerttel, saját kocsibeállóval, 19.6nm-es terasszal, tárolóval, szerződéskötéstől számított 12 hónapon belüli átadással eladó!

Műszaki tartalom

I. Szerkezet építés:
1. A szerkezetet tartó sávalap kiásása 90-100 cm mélységben, 50 cm széles méretben történik, majd betöltése C20/25-16-F2-XC1 minőségű mixer betonból, 30x30 vasalással készül.
2. A szigetelt lábazat zsalukő felhasználásával, vasalva, mixer beton bedolgozásával készül. A lábazati fal feltöltése és tömörítése után 15 cm vasalt szerelőbeton kerül kivitelezésre C20/25-16-F2XC1 betonminőséggel.
3. Az aljzatbeton 6 cm vastagságban 15 cm vastag (AT-N 100) hőszigetelésen kerül kivitelezésre.
4. A főtartó falazat építése során 30 cm vastag nútféderes kerámia (Porotherm vagy Leier) falazóelemeket használunk.
5. Beton pillérek statikus terveknek megfelelően kerülnek kivitelezésre.
6. A belső válaszfalak 10 cm vastag kerámia válaszfaltégla felhasználásával kerül kivitelezésre.
7. A lakás födémszerkezete: faszerkezethez rögzített gipszkarton álmennyezet borítás, 30 cm vastag kőzetgyapottal szigetelve.
8. A tető a hőhídmentesítő szigeteléssel ellátott, C20/25-16-F2-XC1 minőségű vasbeton koszorúra rögzített Szeglemezes tetőszerkezet, mely Bramac Tectura Novo, vagy Creaton Kapstadt cseréppel kerül fedésre, Ereszcsatorna antracit színben készül.
9. Az épület külső homlokzatát, színezését 15 cm vastag EPS 80 polisztirol lap hőszigeteléssel és 1,5 mm Baumit kapart színvakolattal készítjük. Lábazatra 12cm-es XPS szigetelés kerül, Revco mini gránit lábazati vakolat felhasználásával

II. Épületvillamossági és Épületgépészeti munkák:
1. Villanyszerelés
A vezetékek 3 eres, szigetelt vezetők, a szerelvények Legrand Niloe termékcsalád, vagy vele egyenértékű termékek. 1x32A
Az épület építése során helyiségenként 5-5 db konnektor, 1-1 lámpakiállást és kapcsolót biztosítunk. Szobákban és a nappaliban 1 darab antenna kiállás kerül kivitelezésre.
A lakásban egy darab klíma alapszerelése kerül kivitelezésre, valamint egy riasztó alapszerelés

2. Fűtés, víz és lefolyóhálózat:
2.1. A vízvezetékrendszer 5 rétegű műanyag csővezetékből készül, falban és aljzatban rejtett kivitelben, a külső vízvezeték KPE 25 csőből készül és 90 cm mélységben helyezkedik el a talajban.
2.2. A lefolyók PVC műanyag csővezetékből készülnek, készre szerelve, a csatornarendszerhez kötve.
2.3. A fűtés aljzatba vezetve, ötrétegű műanyag csőhálózattal készülő padló-felületfűtés, a fürdőszobában törölközőszárítós radiátorral kiegészítve.
2.4. A fürdőszobában kád Cersanit Virgo 170 vagy épített zuhanyzó kerül, 55 cm-es Alföldi mosdót, valamint Viega beépített WC-t építünk be Cersanit Delfi szerelvénnyel. A csaptelepek Grohe Bau edge, vagy vele egyenértékű termékek.
2.5. A mosókonyhában egy 45 Alföldi mosdó, Grohe Bau Edge csaptelep kerül beépítésre, valamit egy mosógép kiállás kerül.
2.6. Az épület fűtéséről egy 6 kW hőszivattyú gondoskodik, meleg vízellátást Ariston Velis Evo 100 készülékkel biztosítjuk.
2.7 Wc helyiségben Viega beépített WC-t építünk be Cersanit Delfi szerelvénnyel, 45 Alföldi mosdó, Grohe Bau Edge csaptelep kerül beépítésre

III Burkolatok, festés:
1. A lakások hidegburkolatai (fürdőszoba, előtér, Wc, konyha, mosókonyha,) mázas, vagy anyagában színezett gres padlóburkolatok.
2. A fürdőszobát négy falon 200 cm magasságig burkoljuk.
3. A wc helyiség 150 cm magasságban körbe burkolva kerül átadásra
4. A háztartási helyiségben a padló kerül burkolásra
5. A szobák, a nappali és a közlekedő meleg burkolatainak képzése alkalmával,
laminált burkolatot, vagy szőnyeg padlót használunk.
6. A festés során a falat diszperziós falfestékkel kezeljük, melynek színét a pasztellszínek (világos színek, azaz falszín-mintakártyák első 2 színe) keretein belül a Vevő választja ki.

IV. Nyílászárók:
1. A külső nyílászárók 3 rétegű hőszigetelt üvegezéssel készült műanyag szerkezetek, bukó-nyíló kivitelben, kívül színes-belül fehér műanyag nyílászárók kerülnek beépítésre.
2. A rejtett, szigetelt redőnytok beépítése, lefutó és palást nélkül kerülnek kivitelezésre.
3. Beltéri ajtók átfogó tokos, dekorfóliás, teli ajtók raktári készletről (Fehér, fehér kőris, lengyel tölgy, natúr tölgy, primo dió, wenge, akác, sonoma tölgy), vagy vele egyenértékű termékek. Az ajtókat Crhistie kilinccsel szereljük.

V. Külső megjelenés
1. Az utcafronti kerítés kialakítása során egy nagyobb (autó beállására alkalmas) kaput adunk át, elektromos előkészítéssel, motor nélkül és egy gyalogos közlekedésre alkalmas kapu kerül. A gépkocsi és a gyalogos bejáró 10/20 szürke térkővel kerül kivitelezésre, az épület mögött és hátsó részén 60 cm szélességben szegélykő beépítésével mosott kaviccsal feltöltött szegélyt építünk.
2. A külső ablakpárkányok 2 cm aglomeralt készülnek.
3. A terasz burkolata mázas kerámia, vagy gres lap.

Az építkezés megtekintése (bejárása) kizárólag előzetes egyeztetés alapján lehetséges!
További részletekért, időpontegyeztetés miatt, keress bizalommal helyi irodánkat!

Ingatlan, hitel, ügyvéd, egy helyen!

Több információra van szüksége?

Hívjon minket!

+36 (20) 520-8895

Hétfőtől péntekig: 10:00 - 18:00

Kérdése van? Írja meg nekünk!

Az Ön neve:

Az Ön e-mail címe:

Az Ön kérdése:

Kérjen visszahívást!

Az Ön neve:

Az Ön telefonszáma:

+36  

Hasonló ingatlanok

Ár: 125 800 000 Ft.

Új építésű, 4 szobás, kertes, teraszos, ikerházi lakás, Mendén eladó!

CSOK PLUSZRA, ZÖLD HiTELRE, ÁFA VISSZAIGÉNYLÉSRE ALKALMAS, ÚJ ÉPÍTÉSŰ LAKÁS!
Budapesttől (17.kerület) 12km-re Mendén, A+ besorolású, földszintes, két lakásos ikerház, 94.84nm-es, három szoba, nappalis lakása, kizárólagos használatú kerttel, saját kocsibeállóval, 12.81nm-es fedett terasszal, 34.5nm-es terasszal, 24.27nm garázzsal, tárolóval, 2026 nyári átadással eladó!

Műszaki tartalom

I. Szerkezet építés:
1. A szerkezetet tartó sávalap kiásása 90-100 cm mélységben, 50 cm széles méretben történik, majd betöltése C20/25-16-F2-XC1 minőségű mixer betonból, 30x30 vasalással készül.
2. A szigetelt lábazat zsalukő felhasználásával, vasalva, mixer beton bedolgozásával készül. A lábazati fal feltöltése és tömörítése után 15 cm vasalt szerelőbeton kerül kivitelezésre C20/25-16-F2XC1 betonminőséggel.
3. Az aljzatbeton 6 cm vastagságban 15 cm vastag (AT-N 100) hőszigetelésen kerül kivitelezésre.
4. A főtartó falazat építése során 30 cm vastag nútféderes kerámia (Porotherm vagy Leier) falazóelemeket használunk.
5. Beton pillérek statikus terveknek megfelelően kerülnek kivitelezésre.
6. A belső válaszfalak 10 cm vastag kerámia válaszfaltégla felhasználásával kerül kivitelezésre.
7. A lakás födémszerkezete: faszerkezethez rögzített gipszkarton álmennyezet borítás, 30 cm vastag kőzetgyapottal szigetelve.
8. A tető a hőhídmentesítő szigeteléssel ellátott, C20/25-16-F2-XC1 minőségű vasbeton koszorúra rögzített Szeglemezes tetőszerkezet, mely Bramac Tectura Novo, vagy Creaton Kapstadt cseréppel kerül fedésre, Ereszcsatorna antracit színben készül.
9. Az épület külső homlokzatát, színezését 15 cm vastag EPS 80 polisztirol lap hőszigeteléssel és 1,5 mm Baumit kapart színvakolattal készítjük. Lábazatra 12cm-es XPS szigetelés kerül, Revco mini gránit lábazati vakolat felhasználásával

II. Épületvillamossági és Épületgépészeti munkák:
1. Villanyszerelés
A vezetékek 3 eres, szigetelt vezetők, a szerelvények Legrand Niloe termékcsalád, vagy vele egyenértékű termékek. 1x32A
Az épület építése során helyiségenként 5-5 db konnektor, 1-1 lámpakiállást és kapcsolót biztosítunk. Szobákban és a nappaliban 1 darab antenna kiállás kerül kivitelezésre.
A lakásban egy darab klíma alapszerelése kerül kivitelezésre, valamint egy riasztó alapszerelés

2. Fűtés, víz és lefolyóhálózat:
2.1. A vízvezetékrendszer 5 rétegű műanyag csővezetékből készül, falban és aljzatban rejtett kivitelben, a külső vízvezeték KPE 25 csőből készül és 90 cm mélységben helyezkedik el a talajban.
2.2. A lefolyók PVC műanyag csővezetékből készülnek, készre szerelve, a csatornarendszerhez kötve.
2.3. A fűtés aljzatba vezetve, ötrétegű műanyag csőhálózattal készülő padló-felületfűtés, a fürdőszobában törölközőszárítós radiátorral kiegészítve.
2.4. A fürdőszobában kád Cersanit Virgo 170 vagy épített zuhanyzó kerül, 55 cm-es Alföldi mosdót, valamint Viega beépített WC-t építünk be Cersanit Delfi szerelvénnyel. A csaptelepek Grohe Bau edge, vagy vele egyenértékű termékek.
2.5. A mosókonyhában egy 45 Alföldi mosdó, Grohe Bau Edge csaptelep kerül beépítésre, valamit egy mosógép kiállás kerül.
2.6. Az épület fűtéséről egy 6 kW hőszivattyú gondoskodik, meleg vízellátást Ariston Velis Evo 100 készülékkel biztosítjuk.
2.7 Wc helyiségben Viega beépített WC-t építünk be Cersanit Delfi szerelvénnyel, 45 Alföldi mosdó, Grohe Bau Edge csaptelep kerül beépítésre

III Burkolatok, festés:
1. A lakások hidegburkolatai (fürdőszoba, előtér, Wc, konyha, mosókonyha,) mázas, vagy anyagában színezett gres padlóburkolatok.
2. A fürdőszobát négy falon 200 cm magasságig burkoljuk.
3. A wc helyiség 150 cm magasságban körbe burkolva kerül átadásra
4. A háztartási helyiségben a padló kerül burkolásra
5. A szobák, a nappali és a közlekedő meleg burkolatainak képzése alkalmával,
laminált burkolatot, vagy szőnyeg padlót használunk.
6. A festés során a falat diszperziós falfestékkel kezeljük, melynek színét a pasztellszínek (világos színek, azaz falszín-mintakártyák első 2 színe) keretein belül a Vevő választja ki.

IV. Nyílászárók:
1. A külső nyílászárók 3 rétegű hőszigetelt üvegezéssel készült műanyag szerkezetek, bukó-nyíló kivitelben, kívül színes-belül fehér műanyag nyílászárók kerülnek beépítésre.
2. A rejtett, szigetelt redőnytok beépítése, lefutó és palást nélkül kerülnek kivitelezésre.
3. Beltéri ajtók átfogó tokos, dekorfóliás, teli ajtók raktári készletről (Fehér, fehér kőris, lengyel tölgy, natúr tölgy, primo dió, wenge, akác, sonoma tölgy), vagy vele egyenértékű termékek. Az ajtókat Crhistie kilinccsel szereljük.

V. Külső megjelenés
1. Az utcafronti kerítés kialakítása során egy nagyobb (autó beállására alkalmas) kaput adunk át, elektromos előkészítéssel, motor nélkül és egy gyalogos közlekedésre alkalmas kapu kerül. A gépkocsi és a gyalogos bejáró 10/20 szürke térkővel kerül kivitelezésre, az épület mögött és hátsó részén 60 cm szélességben szegélykő beépítésével mosott kaviccsal feltöltött szegélyt építünk.
2. A külső ablakpárkányok 2 cm aglomeralt készülnek.
3. A terasz burkolata mázas kerámia, vagy gres lap.

Az építkezés megtekintése (bejárása) kizárólag előzetes egyeztetés alapján lehetséges!
További részletekért, időpontegyeztetés miatt, keress bizalommal helyi irodánkat!

Ingatlan, hitel, ügyvéd, egy helyen!

Ár: 107 800 000 Ft.

Új építésű, 2 szobás, kertes, teraszos, ikerházi lakás, Mendén eladó!

CSOK PLUSZRA, ZÖLD HiTELRE, ÁFA VISSZAIGÉNYLÉSRE ALKALMAS, ÚJ ÉPÍTÉSŰ LAKÁS!
Budapesttől (17.kerület) 12km-re Mendén, A+ besorolású, földszintes, két lakásos ikerház, 94.82nm-es, három szoba, nappalis lakása, kizárólagos használatú kerttel, saját kocsibeállóval, 12,85nm-es fedett terasszal, 30.7nm-es terasszal, 25nm garázzsal, tárolóval, 2026 nyári átadással eladó!

Műszaki tartalom

I. Szerkezet építés:
1. A szerkezetet tartó sávalap kiásása 90-100 cm mélységben, 50 cm széles méretben történik, majd betöltése C20/25-16-F2-XC1 minőségű mixer betonból, 30x30 vasalással készül.
2. A szigetelt lábazat zsalukő felhasználásával, vasalva, mixer beton bedolgozásával készül. A lábazati fal feltöltése és tömörítése után 15 cm vasalt szerelőbeton kerül kivitelezésre C20/25-16-F2XC1 betonminőséggel.
3. Az aljzatbeton 6 cm vastagságban 15 cm vastag (AT-N 100) hőszigetelésen kerül kivitelezésre.
4. A főtartó falazat építése során 30 cm vastag nútféderes kerámia (Porotherm vagy Leier) falazóelemeket használunk.
5. Beton pillérek statikus terveknek megfelelően kerülnek kivitelezésre.
6. A belső válaszfalak 10 cm vastag kerámia válaszfaltégla felhasználásával kerül kivitelezésre.
7. A lakás födémszerkezete: faszerkezethez rögzített gipszkarton álmennyezet borítás, 30 cm vastag kőzetgyapottal szigetelve.
8. A tető a hőhídmentesítő szigeteléssel ellátott, C20/25-16-F2-XC1 minőségű vasbeton koszorúra rögzített Szeglemezes tetőszerkezet, mely Bramac Tectura Novo, vagy Creaton Kapstadt cseréppel kerül fedésre, Ereszcsatorna antracit színben készül.
9. Az épület külső homlokzatát, színezését 15 cm vastag EPS 80 polisztirol lap hőszigeteléssel és 1,5 mm Baumit kapart színvakolattal készítjük. Lábazatra 12cm-es XPS szigetelés kerül, Revco mini gránit lábazati vakolat felhasználásával

II. Épületvillamossági és Épületgépészeti munkák:
1. Villanyszerelés
A vezetékek 3 eres, szigetelt vezetők, a szerelvények Legrand Niloe termékcsalád, vagy vele egyenértékű termékek. 1x32A
Az épület építése során helyiségenként 5-5 db konnektor, 1-1 lámpakiállást és kapcsolót biztosítunk. Szobákban és a nappaliban 1 darab antenna kiállás kerül kivitelezésre.
A lakásban egy darab klíma alapszerelése kerül kivitelezésre, valamint egy riasztó alapszerelés

2. Fűtés, víz és lefolyóhálózat:
2.1. A vízvezetékrendszer 5 rétegű műanyag csővezetékből készül, falban és aljzatban rejtett kivitelben, a külső vízvezeték KPE 25 csőből készül és 90 cm mélységben helyezkedik el a talajban.
2.2. A lefolyók PVC műanyag csővezetékből készülnek, készre szerelve, a csatornarendszerhez kötve.
2.3. A fűtés aljzatba vezetve, ötrétegű műanyag csőhálózattal készülő padló-felületfűtés, a fürdőszobában törölközőszárítós radiátorral kiegészítve.
2.4. A fürdőszobában kád Cersanit Virgo 170 vagy épített zuhanyzó kerül, 55 cm-es Alföldi mosdót, valamint Viega beépített WC-t építünk be Cersanit Delfi szerelvénnyel. A csaptelepek Grohe Bau edge, vagy vele egyenértékű termékek.
2.5. A mosókonyhában egy 45 Alföldi mosdó, Grohe Bau Edge csaptelep kerül beépítésre, valamit egy mosógép kiállás kerül.
2.6. Meleg vízellátást Ariston Velis Evo 100 készülékkel biztosítjuk.
2.7 Wc helyiségben Viega beépített WC-t építünk be Cersanit Delfi szerelvénnyel, 45 Alföldi mosdó, Grohe Bau Edge csaptelep kerül beépítésre

III Burkolatok, festés:
1. A lakások hidegburkolatai (fürdőszoba, előtér, Wc, konyha, mosókonyha,) mázas, vagy anyagában színezett gres padlóburkolatok.
2. A fürdőszobát négy falon 200 cm magasságig burkoljuk.
3. A wc helyiség 150 cm magasságban körbe burkolva kerül átadásra
4. A háztartási helyiségben a padló kerül burkolásra
5. A szobák, a nappali és a közlekedő meleg burkolatainak képzése alkalmával,
laminált burkolatot, vagy szőnyeg padlót használunk.
6. A festés során a falat diszperziós falfestékkel kezeljük, melynek színét a pasztellszínek (világos színek, azaz falszín-mintakártyák első 2 színe) keretein belül a Vevő választja ki.

IV. Nyílászárók:
1. A külső nyílászárók 3 rétegű hőszigetelt üvegezéssel készült műanyag szerkezetek, bukó-nyíló kivitelben, kívül színes-belül fehér műanyag nyílászárók kerülnek beépítésre.
2. A rejtett, szigetelt redőnytok beépítése, lefutó és palást nélkül kerülnek kivitelezésre.
3. Beltéri ajtók átfogó tokos, dekorfóliás, teli ajtók raktári készletről (Fehér, fehér kőris, lengyel tölgy, natúr tölgy, primo dió, wenge, akác, sonoma tölgy), vagy vele egyenértékű termékek. Az ajtókat Crhistie kilinccsel szereljük.

V. Külső megjelenés
1. Az utcafronti kerítés kialakítása során egy nagyobb (autó beállására alkalmas) kaput adunk át, elektromos előkészítéssel, motor nélkül és egy gyalogos közlekedésre alkalmas kapu kerül. A gépkocsi és a gyalogos bejáró 10/20 szürke térkővel kerül kivitelezésre, az épület mögött és hátsó részén 60 cm szélességben szegélykő beépítésével mosott kaviccsal feltöltött szegélyt építünk.
2. A külső ablakpárkányok 2 cm aglomeralt készülnek.
3. A terasz burkolata mázas kerámia, vagy gres lap.

Az építkezés megtekintése (bejárása) kizárólag előzetes egyeztetés alapján lehetséges!
További részletekért, időpontegyeztetés miatt, keress bizalommal helyi irodánkat!

Ingatlan, hitel, ügyvéd, egy helyen!

Ár: 89 500 000 Ft.

Új építésű, 4 szobás, emeleti, társasházi lakás, kerttel, saját kocsibeállóval, Sülysápon eladó!

CSOK PLUSZRA, ZÖLD HiTELRE, ÁFA VISSZAIGÉNYLÉSRE ALKALMAS, ÚJ ÉPÍTÉSŰ LAKÁS!
Budapesttől (17.kerület) 19km-re Sülysápon, A+ besorolású, két szintes, két lakásos társasház, emeleti, 90.39nm-es, három szoba, nappalis lakása, 200nm-es kizárólagos használatú kerttel, saját kocsibeállóval, 32.78nm-es terasszal, tárolóval, szerződéskötéstől számított 12 hónapon belüli átadással eladó!

Műszaki tartalom

I. Szerkezet építés:
1. A szerkezetet tartó sávalap kiásása 90-100 cm mélységben, 50 cm széles méretben történik, majd betöltése C20/25-16-F2-XC1 minőségű mixer betonból, 30x30 vasalással készül.
2. A szigetelt lábazat zsalukő felhasználásával, vasalva, mixer beton bedolgozásával készül. A lábazati fal feltöltése és tömörítése után 15 cm vasalt szerelőbeton kerül kivitelezésre C20/25-16-F2XC1 betonminőséggel.
3. Az aljzatbeton 6 cm vastagságban 15 cm vastag (AT-N 100) hőszigetelésen kerül kivitelezésre.
4. A főtartó falazat építése során 30 cm vastag nútféderes kerámia (Porotherm vagy Leier) falazóelemeket használunk.
5. Beton pillérek statikus terveknek megfelelően kerülnek kivitelezésre.
6. A belső válaszfalak 10 cm vastag kerámia válaszfaltégla felhasználásával kerül kivitelezésre.
7. A lakás födémszerkezete: faszerkezethez rögzített gipszkarton álmennyezet borítás, 30 cm vastag kőzetgyapottal szigetelve.
8. A tető a hőhídmentesítő szigeteléssel ellátott, C20/25-16-F2-XC1 minőségű vasbeton koszorúra rögzített Szeglemezes tetőszerkezet, mely Bramac Tectura Novo, vagy Creaton Kapstadt cseréppel kerül fedésre, Ereszcsatorna antracit színben készül.
9. Az épület külső homlokzatát, színezését 15 cm vastag EPS 80 polisztirol lap hőszigeteléssel és 1,5 mm Baumit kapart színvakolattal készítjük. Lábazatra 12cm-es XPS szigetelés kerül, Revco mini gránit lábazati vakolat felhasználásával

II. Épületvillamossági és Épületgépészeti munkák:
1. Villanyszerelés
A vezetékek 3 eres, szigetelt vezetők, a szerelvények Legrand Niloe termékcsalád, vagy vele egyenértékű termékek. 1x32A
Az épület építése során helyiségenként 5-5 db konnektor, 1-1 lámpakiállást és kapcsolót biztosítunk. Szobákban és a nappaliban 1 darab antenna kiállás kerül kivitelezésre.
A lakásban egy darab klíma alapszerelése kerül kivitelezésre, valamint egy riasztó alapszerelés

2. Fűtés, víz és lefolyóhálózat:
2.1. A vízvezetékrendszer 5 rétegű műanyag csővezetékből készül, falban és aljzatban rejtett kivitelben, a külső vízvezeték KPE 25 csőből készül és 90 cm mélységben helyezkedik el a talajban.
2.2. A lefolyók PVC műanyag csővezetékből készülnek, készre szerelve, a csatornarendszerhez kötve.
2.3. A fűtés aljzatba vezetve, ötrétegű műanyag csőhálózattal készülő padló-felületfűtés, a fürdőszobában törölközőszárítós radiátorral kiegészítve.
2.4. A fürdőszobában kád Cersanit Virgo 170 vagy épített zuhanyzó kerül, 55 cm-es Alföldi mosdót, valamint Viega beépített WC-t építünk be Cersanit Delfi szerelvénnyel. A csaptelepek Grohe Bau edge, vagy vele egyenértékű termékek.
2.5. A mosókonyhában egy 45 Alföldi mosdó, Grohe Bau Edge csaptelep kerül beépítésre, valamit egy mosógép kiállás kerül.
2.6. Az épület fűtéséről egy 6 kW hőszivattyú gondoskodik, meleg vízellátást Ariston Velis Evo 100 készülékkel biztosítjuk.
2.7 Wc helyiségben Viega beépített WC-t építünk be Cersanit Delfi szerelvénnyel, 45 Alföldi mosdó, Grohe Bau Edge csaptelep kerül beépítésre

III Burkolatok, festés:
1. A lakások hidegburkolatai (fürdőszoba, előtér, Wc, konyha, mosókonyha,) mázas, vagy anyagában színezett gres padlóburkolatok.
2. A fürdőszobát négy falon 200 cm magasságig burkoljuk.
3. A wc helyiség 150 cm magasságban körbe burkolva kerül átadásra
4. A háztartási helyiségben a padló kerül burkolásra
5. A szobák, a nappali és a közlekedő meleg burkolatainak képzése alkalmával,
laminált burkolatot, vagy szőnyeg padlót használunk.
6. A festés során a falat diszperziós falfestékkel kezeljük, melynek színét a pasztellszínek (világos színek, azaz falszín-mintakártyák első 2 színe) keretein belül a Vevő választja ki.

IV. Nyílászárók:
1. A külső nyílászárók 3 rétegű hőszigetelt üvegezéssel készült műanyag szerkezetek, bukó-nyíló kivitelben, kívül színes-belül fehér műanyag nyílászárók kerülnek beépítésre.
2. A rejtett, szigetelt redőnytok beépítése, lefutó és palást nélkül kerülnek kivitelezésre.
3. Beltéri ajtók átfogó tokos, dekorfóliás, teli ajtók raktári készletről (Fehér, fehér kőris, lengyel tölgy, natúr tölgy, primo dió, wenge, akác, sonoma tölgy), vagy vele egyenértékű termékek. Az ajtókat Crhistie kilinccsel szereljük.

V. Külső megjelenés
1. Az utcafronti kerítés kialakítása során egy nagyobb (autó beállására alkalmas) kaput adunk át, elektromos előkészítéssel, motor nélkül és egy gyalogos közlekedésre alkalmas kapu kerül. A gépkocsi és a gyalogos bejáró 10/20 szürke térkővel kerül kivitelezésre, az épület mögött és hátsó részén 60 cm szélességben szegélykő beépítésével mosott kaviccsal feltöltött szegélyt építünk.
2. A külső ablakpárkányok 2 cm aglomeralt készülnek.
3. A terasz burkolata mázas kerámia, vagy gres lap.

Az építkezés megtekintése (bejárása) kizárólag előzetes egyeztetés alapján lehetséges!
További részletekért, időpontegyeztetés miatt, keress bizalommal helyi irodánkat!

Ingatlan, hitel, ügyvéd, egy helyen!

Ár: 53 900 000 Ft.

Új építésű, 2 szobás, emeleti lakás, tárolóval, Mendén eladó!

Mendei ingatlant, a Mende Ingatlancentrumtól!
AKCIÓ!
Most 1 millió forinttal leköthető az ingatlan.

A+ besorolású, két szintes, társasház, 44.86nm-es, emeleti, 1 szoba, nappalis lakása, tárolóval, saját kocsibeállóval, 2027. augusztusi átadással eladó!
Projekt kezdés 2026. június.

Műszaki tartalom:

Teherhordó és épületszerkezetek
- Alapozás: beton sávalap, monolit vb. talpgerendával, modifikált bitumenes vastaglemez talajnedvesség elleni vízszigeteléssel.
- Függőleges teherhordó szerkezet: vázkerámia teherhordó falszerkezetek, 30cm vtg Porotherm vagy Leiertherm, +vakolat
- Vízszintes teherhordó szerkezet: fa födém, monolit áthidaló a szükséges helyeken (nyílások felett)
- Tetőszerkezet: hagyományos fa tetőszerkezet, 30 cm ISOCEL fújt szigetelés

Homlokzati anyagok
- Lábazat: a csatlakozó terepszint fölött 30 cm-ig a vízszintes vízszigetelés fel lesz vezetve az épület homlokzatára. A szigetelés a mechanikai hatások ellen zárt cellás hőszigetelő anyaggal lesz védve.15 cm XPS
- Homlokzatvakolat: a fűtött terekhez kapcsolódó homlokzat a szükséges helyeken 20 cm EPS hőszigetelést kap, amelyre színvakolat kerül. A fűtetlen terek homlokzati részei vakolattal vagy kőburkolattal lesznek fedve. A homlokzati szín az engedélyes tervektől eltérhet a környezet miatt. A Vevő ezzel kapcsolatban kártérítési igénnyel nem élhet.
- Nyílászárók: hőszigetelt 3 rétegű üvegezésű Kívül belül fehér műanyag nyílászárók (U= 1,1 W/m2K). A rejtett redőnytokok és a levezetők árát tartalmazza. A redőny palást, szúnyogháló és esetleges motorizálás, külön kérésre térítés ellenében rendelhető. Az ablakok bukó-nyíló vasalásúak. (Terven szereplő kivitel)
A bejárati ajtó több ponton záródó biztonsági kivitelben készül.
- Könyöklők, párkányok: a nyílászárók könyöklői fehér műanyag kivitelűek, a párkányok műanyagból készülnek.
- Héjazat: antracit szürke Beton cserép
- Bádogos szerkezet: horganyzott bádogozás illetve festett alumínium ereszrendszer antracit szürke színben

Beltéri anyagok
- Válaszfalak: Leier 10N+F válaszfalak, vakolt felülettel
- Nyílászárók: egyedi tömör ajtó laminált felülettel, 45.000,- Ft darabárig választható
- Burkolatok: bruttó 4.500,- Ft/m2 árig választható hideg és meleg burkolatok. A teraszokra fagyálló kerámialap burkolat kerül 7 cm saját anyagából készült lábazattal.
vizes helyiségekben: csempe burkolat 2,1 m-ig
A burkolatok egyszerű hálós, illetve eltolt mintában rakva. Diagonális, vagy egyéb összetettebb burkolat minták esetén, (díszcsík, szalag, stb.) többlet munkadíj kerül felszámolásra
- Falak festése: falak és mennyezet glettelt, 2-szeri fehér festéssel
- Szaniterek: kád (75x170) fehér Akril 47.000,-Ft/db-ig választható. Szaniterek ALFÖLDI fehér kerámia mosdó, WC falba épített rejtett tartályos fehér nyomó lappal, MOFÉM csaptelepek
- Konyhabútor: a konyhabútor nem képezi a szerződés tárgyát.
- Konyha: a konyhában az alsó és felső konyhabútorok közé 60 cm széles sávban készül falburkolat. A konyhában mosogató kiállás és mosogatógép csatlakozási (hidegvizes csapkiállás+elvezető) lehetőség lesz.

Gépészet:
- szellőzés: lakóhelyiségeknél természetes szellőzés, ablakkal nem rendelkező helyiségekben egyedi gravitációs kürtős.
- gázellátás:Gáz bekötés nem készül
- Fűtés: RIELLO 1 fázisú, 8 kW-os, Hőszivattyú + 1 db légkondi HISENSE fali kivitel 3,5 kw (hűtésre)
- Fűtés típusa: padlófűtés, szabályzása: 1 db rádiós termosztát lesz elhelyezve.
- Vízellátás: utcai közhálózatról ellátott, fertőtlenített belső rendszer, lakásonként (egységenkénti) mérésekkel.
- csatornázás: községi közhálózatra kötött szennyvíz.

Elektromosság:
- elektromos ellátás: meglévő utcai hálózatról, egyedi méréssel. (1x32 A) A konyhák elektromos üzeműek. A villanysütő és kerámialapos tűzhely részére kiállás biztosított. Riasztó előkészítés. (A lakás riasztórendszeréhez védőcsövezés kiépítése egy- egy mozgásérzékelő részére, és kezelőpanel felszereléséhez.)
A lámpatestek nem képezik a szerződés tárgyát.

Napelem : Napelem nem készül

Kert:
- Külső térszíni burkolt: beton szegéllyel ellátott, szürke viacolor a terveken szereplő felületeken és mennyiségben
- Kert: tereprendezett
- Kerítés: egyszerű kerti szegély lábazat, vas oszlopok, közte deszka borítás, gyalult, festett kivitellel illetve lamellás szürke kerítéselemek a lakások között elválasztva. Az utca felé zsalukő lábazat, fehér színezéssel, beton oszlopokkal 1,8m magas, közte deszka borítással, antracit szürke színnel.

További részletekért, időpont egyeztetés miatt, keressen bizalommal!

Ingatlan, hitel, ügyvéd, egy helyen!

Ár: 53 800 000 Ft.

Új építésű, 2 szobás, emeleti lakás, tárolóval, Mendén eladó!

Mendei ingatlant, a Mende Ingatlancentrumtól!
AKCIÓ!
Most 1 millió forinttal leköthető az ingatlan.

A+ besorolású, két szintes, társasház, 44.86nm-es, emeleti, egy szoba, nappalis lakása, tárolóval, saját kocsibeállóval, 2027. augusztusi átadással eladó!
Projekt kezdés 2026. június.

Műszaki tartalom:

Teherhordó és épületszerkezetek
- Alapozás: beton sávalap, monolit vb. talpgerendával, modifikált bitumenes vastaglemez talajnedvesség elleni vízszigeteléssel.
- Függőleges teherhordó szerkezet: vázkerámia teherhordó falszerkezetek, 30cm vtg Porotherm vagy Leiertherm, +vakolat
- Vízszintes teherhordó szerkezet: fa födém, monolit áthidaló a szükséges helyeken (nyílások felett)
- Tetőszerkezet: hagyományos fa tetőszerkezet, 30 cm ISOCEL fújt szigetelés

Homlokzati anyagok
- Lábazat: a csatlakozó terepszint fölött 30 cm-ig a vízszintes vízszigetelés fel lesz vezetve az épület homlokzatára. A szigetelés a mechanikai hatások ellen zárt cellás hőszigetelő anyaggal lesz védve.15 cm XPS
- Homlokzatvakolat: a fűtött terekhez kapcsolódó homlokzat a szükséges helyeken 20 cm EPS hőszigetelést kap, amelyre színvakolat kerül. A fűtetlen terek homlokzati részei vakolattal vagy kőburkolattal lesznek fedve. A homlokzati szín az engedélyes tervektől eltérhet a környezet miatt. A Vevő ezzel kapcsolatban kártérítési igénnyel nem élhet.
- Nyílászárók: hőszigetelt 3 rétegű üvegezésű Kívül belül fehér műanyag nyílászárók (U= 1,1 W/m2K). A rejtett redőnytokok és a levezetők árát tartalmazza. A redőny palást, szúnyogháló és esetleges motorizálás, külön kérésre térítés ellenében rendelhető. Az ablakok bukó-nyíló vasalásúak. (Terven szereplő kivitel)
A bejárati ajtó több ponton záródó biztonsági kivitelben készül.
- Könyöklők, párkányok: a nyílászárók könyöklői fehér műanyag kivitelűek, a párkányok műanyagból készülnek.
- Héjazat: antracit szürke Beton cserép
- Bádogos szerkezet: horganyzott bádogozás illetve festett alumínium ereszrendszer antracit szürke színben

Beltéri anyagok
- Válaszfalak: Leier 10N+F válaszfalak, vakolt felülettel
- Nyílászárók: egyedi tömör ajtó laminált felülettel, 45.000,- Ft darabárig választható
- Burkolatok: bruttó 4.500,- Ft/m2 árig választható hideg és meleg burkolatok. A teraszokra fagyálló kerámialap burkolat kerül 7 cm saját anyagából készült lábazattal.
vizes helyiségekben: csempe burkolat 2,1 m-ig
A burkolatok egyszerű hálós, illetve eltolt mintában rakva. Diagonális, vagy egyéb összetettebb burkolat minták esetén, (díszcsík, szalag, stb.) többlet munkadíj kerül felszámolásra
- Falak festése: falak és mennyezet glettelt, 2-szeri fehér festéssel
- Szaniterek: kád (75x170) fehér Akril 47.000,-Ft/db-ig választható. Szaniterek ALFÖLDI fehér kerámia mosdó, WC falba épített rejtett tartályos fehér nyomó lappal, MOFÉM csaptelepek
- Konyhabútor: a konyhabútor nem képezi a szerződés tárgyát.
- Konyha: a konyhában az alsó és felső konyhabútorok közé 60 cm széles sávban készül falburkolat. A konyhában mosogató kiállás és mosogatógép csatlakozási (hidegvizes csapkiállás+elvezető) lehetőség lesz.

Gépészet:
- szellőzés: lakóhelyiségeknél természetes szellőzés, ablakkal nem rendelkező helyiségekben egyedi gravitációs kürtős.
- gázellátás:Gáz bekötés nem készül
- Fűtés: RIELLO 1 fázisú, 8 kW-os, Hőszivattyú + 1 db légkondi HISENSE fali kivitel 3,5 kw (hűtésre)
- Fűtés típusa: padlófűtés, szabályzása: 1 db rádiós termosztát lesz elhelyezve.
- Vízellátás: utcai közhálózatról ellátott, fertőtlenített belső rendszer, lakásonként (egységenkénti) mérésekkel.
- csatornázás: községi közhálózatra kötött szennyvíz.

Elektromosság:
- elektromos ellátás: meglévő utcai hálózatról, egyedi méréssel. (1x32 A) A konyhák elektromos üzeműek. A villanysütő és kerámialapos tűzhely részére kiállás biztosított. Riasztó előkészítés. (A lakás riasztórendszeréhez védőcsövezés kiépítése egy- egy mozgásérzékelő részére, és kezelőpanel felszereléséhez.)
A lámpatestek nem képezik a szerződés tárgyát.

Napelem : Napelem nem készül

Kert:
- Külső térszíni burkolt: beton szegéllyel ellátott, szürke viacolor a terveken szereplő felületeken és mennyiségben
- Kert: tereprendezett
- Kerítés: egyszerű kerti szegély lábazat, vas oszlopok, közte deszka borítás, gyalult, festett kivitellel illetve lamellás szürke kerítéselemek a lakások között elválasztva. Az utca felé zsalukő lábazat, fehér színezéssel, beton oszlopokkal 1,8m magas, közte deszka borítással, antracit szürke színnel.

További részletekért, időpont egyeztetés miatt, keressen bizalommal!

Ingatlan, hitel, ügyvéd, egy helyen!

Ár: 53 800 000 Ft.

Új építésű, 2 szobás, emeleti lakás, tárolóval, Mendén eladó!

Mendei ingatlant, a Mende Ingatlancentrumtól!
AKCIÓ!
Most 1 millió forinttal leköthető az ingatlan.

A+ besorolású, két szintes, társasház, 44.86nm-es, emeleti, egy szoba, nappalis lakása, tárolóval, saját kocsibeállóval, 2027. augusztusi átadással eladó!
Projekt kezdés 2026. június.

Műszaki tartalom:

Teherhordó és épületszerkezetek
- Alapozás: beton sávalap, monolit vb. talpgerendával, modifikált bitumenes vastaglemez talajnedvesség elleni vízszigeteléssel.
- Függőleges teherhordó szerkezet: vázkerámia teherhordó falszerkezetek, 30cm vtg Porotherm vagy Leiertherm, +vakolat
- Vízszintes teherhordó szerkezet: fa födém, monolit áthidaló a szükséges helyeken (nyílások felett)
- Tetőszerkezet: hagyományos fa tetőszerkezet, 30 cm ISOCEL fújt szigetelés

Homlokzati anyagok
- Lábazat: a csatlakozó terepszint fölött 30 cm-ig a vízszintes vízszigetelés fel lesz vezetve az épület homlokzatára. A szigetelés a mechanikai hatások ellen zárt cellás hőszigetelő anyaggal lesz védve.15 cm XPS
- Homlokzatvakolat: a fűtött terekhez kapcsolódó homlokzat a szükséges helyeken 20 cm EPS hőszigetelést kap, amelyre színvakolat kerül. A fűtetlen terek homlokzati részei vakolattal vagy kőburkolattal lesznek fedve. A homlokzati szín az engedélyes tervektől eltérhet a környezet miatt. A Vevő ezzel kapcsolatban kártérítési igénnyel nem élhet.
- Nyílászárók: hőszigetelt 3 rétegű üvegezésű Kívül belül fehér műanyag nyílászárók (U= 1,1 W/m2K). A rejtett redőnytokok és a levezetők árát tartalmazza. A redőny palást, szúnyogháló és esetleges motorizálás, külön kérésre térítés ellenében rendelhető. Az ablakok bukó-nyíló vasalásúak. (Terven szereplő kivitel)
A bejárati ajtó több ponton záródó biztonsági kivitelben készül.
- Könyöklők, párkányok: a nyílászárók könyöklői fehér műanyag kivitelűek, a párkányok műanyagból készülnek.
- Héjazat: antracit szürke Beton cserép
- Bádogos szerkezet: horganyzott bádogozás illetve festett alumínium ereszrendszer antracit szürke színben

Beltéri anyagok
- Válaszfalak: Leier 10N+F válaszfalak, vakolt felülettel
- Nyílászárók: egyedi tömör ajtó laminált felülettel, 45.000,- Ft darabárig választható
- Burkolatok: bruttó 4.500,- Ft/m2 árig választható hideg és meleg burkolatok. A teraszokra fagyálló kerámialap burkolat kerül 7 cm saját anyagából készült lábazattal.
vizes helyiségekben: csempe burkolat 2,1 m-ig
A burkolatok egyszerű hálós, illetve eltolt mintában rakva. Diagonális, vagy egyéb összetettebb burkolat minták esetén, (díszcsík, szalag, stb.) többlet munkadíj kerül felszámolásra
- Falak festése: falak és mennyezet glettelt, 2-szeri fehér festéssel
- Szaniterek: kád (75x170) fehér Akril 47.000,-Ft/db-ig választható. Szaniterek ALFÖLDI fehér kerámia mosdó, WC falba épített rejtett tartályos fehér nyomó lappal, MOFÉM csaptelepek
- Konyhabútor: a konyhabútor nem képezi a szerződés tárgyát.
- Konyha: a konyhában az alsó és felső konyhabútorok közé 60 cm széles sávban készül falburkolat. A konyhában mosogató kiállás és mosogatógép csatlakozási (hidegvizes csapkiállás+elvezető) lehetőség lesz.

Gépészet:
- szellőzés: lakóhelyiségeknél természetes szellőzés, ablakkal nem rendelkező helyiségekben egyedi gravitációs kürtős.
- gázellátás:Gáz bekötés nem készül
- Fűtés: RIELLO 1 fázisú, 8 kW-os, Hőszivattyú + 1 db légkondi HISENSE fali kivitel 3,5 kw (hűtésre)
- Fűtés típusa: padlófűtés, szabályzása: 1 db rádiós termosztát lesz elhelyezve.
- Vízellátás: utcai közhálózatról ellátott, fertőtlenített belső rendszer, lakásonként (egységenkénti) mérésekkel.
- csatornázás: községi közhálózatra kötött szennyvíz.

Elektromosság:
- elektromos ellátás: meglévő utcai hálózatról, egyedi méréssel. (1x32 A) A konyhák elektromos üzeműek. A villanysütő és kerámialapos tűzhely részére kiállás biztosított. Riasztó előkészítés. (A lakás riasztórendszeréhez védőcsövezés kiépítése egy- egy mozgásérzékelő részére, és kezelőpanel felszereléséhez.)
A lámpatestek nem képezik a szerződés tárgyát.

Napelem : Napelem nem készül

Kert:
- Külső térszíni burkolt: beton szegéllyel ellátott, szürke viacolor a terveken szereplő felületeken és mennyiségben
- Kert: tereprendezett
- Kerítés: egyszerű kerti szegély lábazat, vas oszlopok, közte deszka borítás, gyalult, festett kivitellel illetve lamellás szürke kerítéselemek a lakások között elválasztva. Az utca felé zsalukő lábazat, fehér színezéssel, beton oszlopokkal 1,8m magas, közte deszka borítással, antracit szürke színnel.

További részletekért, időpont egyeztetés miatt, keressen bizalommal!

Ingatlan, hitel, ügyvéd, egy helyen!